最近の非住宅の木造流行りなんですが、意外と盲点なのが「防火区画の貫通処理」だったりします。この点、日経クロステックさんなどでも記事で取り上げています。
非住宅を木造で建築する場合のメリットとしては、住宅で培ったノウハウをそのまま流用できるというところにありますが、防火規定の部分では内装制限や避難経路の防火規定など、住宅では意識したことのないような法規制に対応する必要があります。
実際には法で規制されますから「確認申請」においての確認事項にもなってくるわけですが、設計図書に書かれていることが具体的な施工指示でない場合には、単に準拠法文の条項のみの記載になっていたりします。そのため現場では、その記載に適応できるような施工方法を検討し執行しなければなりませんが、設計者の指示が曖昧ですと誤った施工方法をとることも想定されます。
正直いいますが、設計者が一般住宅の木造の設計しか経験がないとすると、この防火規制に対応することは意外と困難になります。なぜなら、住宅においての防火規制の対応の大半は「外壁部分の構造と設備」でクリアできるためです。ところが非住宅になりますと、室内の「間仕切り壁」にも防火規制を受けることがあるからです。
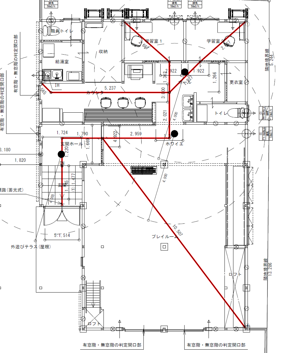
これは120㎡程度の「児童福祉施設」ですが、木造平屋建てで120㎡と極めて小規模ではあるものの、防火規制はそれなりに求められます。この図は防火避難規定をまとめた図面ですが、避難経路になる部分の歩行距離や非常用照明の設置、避難経路の幅、避難経路にある開口部の有効開口寸法といったものが記載されています。

この避難経路に対して、法的には避難中に間仕切り壁が燃えないことを担保するために規制がなされます。

避難経路としての規制を受けるのは、「居室」として扱われる部分から「逃げだす」ための開口部(ドアや引き戸)から壁伝いに歩行していくときに「手をあてることができる壁」がすべて規制対象の壁となります。図中の赤の壁がその壁になります。この壁は防火構造として「準耐火構造壁」としての仕様が要求されることになります。
準耐火構造の壁は、「建設省告示第1358号第一」に仕様規定の記載がありますが、木造での対応の場合には、
告示第1358号第一、一、ハ(1)(iii) P.Bア12.5mm+9.5mm 両面
として、壁の両面を石膏ボード12.5mmと9.5mmの二重張りとすることが求められます。そして、この準耐火構造の壁は「天井裏、屋根垂木下端まで到達」する必要があります。要するに天井裏にもこの壁の石膏ボードが張り上がっている必要があります(もちろん壁勝ちです)。断面図としてはこのような形で、天井まで到達させることを明示してある必要があります。

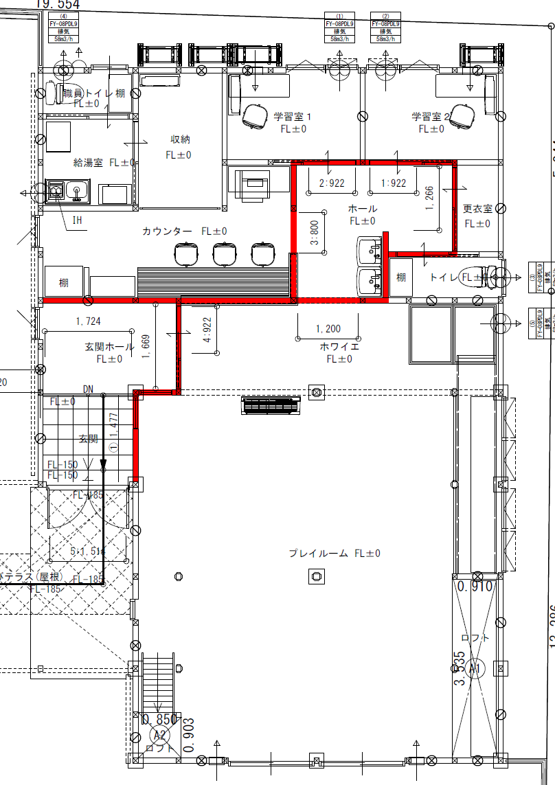
この時、平屋の場合、影響を受けるのは主として「電気配線」や「空調設備」ということになります。法的には、この赤の壁を配線が「貫通」する場合には、貫通箇所の防火処理が必要になります。日経クロステックの記事ではこの点の施工不良を取り上げています。
ですが、冷静に考えてほしいのですが、設計レベルでどこに「準耐火構造壁」がくるかははっきりしているわけですので、電気設備の配線計画は、この壁を極力この時、平屋の場合、影響を受けるのは主として「電気配線」や「空調設備」ということになります。法的には、この赤の壁を配線が「貫通」する場合には、貫通箇所の防火処理が必要になります。日経クロステックの記事ではこの点の施工不良を取り上げています。ですが、冷静に考えてほしいのですが、設計レベルでどこに「準耐火構造壁」がくるかははっきりしているわけですので、電気設備の配線計画は、この壁を極力避けるような計画にするか、貫通処理が最小限の箇所で済むような配線設計を行えばいいだけです。
この図は弱電の配線図ですが、貫通処理の箇所を明示しています。

この設計では4か所の貫通処理を計画しました。ですが、現場では配線経路を工夫し、3か所の貫通処理で対応することができています。



そして問題の貫通処理ですが、普通に穴を開けて線を通しましたというだけではダメです。防火規制を受けている壁は、その穴から炎が侵入しないようにする必要がありますから、それが担保される性能で施工する必要があります。
弊社での設計では、未来工業株式会社さんの「クイック」という防火貫通処理を行う部材をつかっています。

施工監理上、この貫通処理部材を使う場合には、その旨を設計図書に記載することと、現場で「クイック」を使っている旨のラベルを張る必要があります。特に現場に張るシールは重要で、類似品やパテ埋めなどで模造したような不正行為を防ぐためで、ラベルは購入した1組に両面分の2枚しか添付されていないのである程度確実に使用した部材の証明ともなります。
また、念のため完了検査や消防検査をはじめとする防火関係の検査の際に貫通処理を確認できるための「天井点検口」の設置も必要になります。
規模の大小に関わらず「防火」に関する規定準拠というのは、設計レベルでしっかりと対応できる施工方法を検討しなければ、クロステックで取り上げているような「ずさんな工事」で済ませてしまう事例が多いのです。特に木造の場合には、設計、施工レベルで防火仕様に関する見聞見識が浅いことに起因することが多いので注意が必要です。




